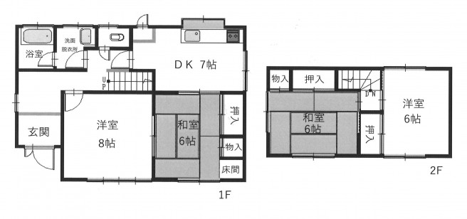
松山市古川北売土地(たくみ不動産)
2026.2.24
松山市古川北売土地(たくみ不動産)





| 物件名 | 松山市古川北売土地 |
|---|---|
| 物件所在地 | 松山市古川北4丁目410番4(15番24号) |
| 全区画数 | 1区画 |
| 販売区画数 | 1区画 |
| 建築条件 | 建築条件なし |
| 建ぺい率・容積率 | 60%・200% |
| 都市計画・用途地域・地目・地勢 | 市街化区域・第二種中高層住居専用地域・宅地・平坦 |
| 土地の権利形態 | 所有権 |
| 接道 | 西・約4.0m・私道・接面約10.22m 位置指定あり |
| 最適用途 | 住宅用地 |
| 土地面積 | 165.85㎡(約50.16坪) |
| 価格・坪単価 | 2,050万円・@40.86万円 |
| 現況 | 上物有 |
| 設備 | 上水道・下水道・電気・プロパンガス |
| 校区 | 椿小学校・椿中学校 |
| 交通 | 伊予バス 古川バス停より 徒歩約2分 JR予讃線 市坪駅より 徒歩約18分 |
| 取引態様 | 専任 |
| 備考 | ★生活便利な立地・閑静住宅地の人気地区(第二種中高層住居専用地域) ★更地渡し相談(古家あり:木造瓦葺2階・35.86坪・S53築) |
| 注意事項 | 現在の販売状況(お申し込み状況、区画割変更、価格変更等)が当ページの情報と異なる場合がございます。その際は現況を優先いたしますので、物件情報に関する詳細は、必ず下記お問い合わせ先へご確認ください。 |
| 更新状況 | ・情報登録日:2026/2/24 毎月10日情報更新いたします |
| お問い合わせ | たくみ不動産㈱ 松山市土居田町421-3 TEL:089-994-5501 愛媛県知事免許(4)第4941号 メール:takumi213@star.ocn.ne.jp ホームページ: https://takumi-fudousan.com/ |
2026.2.20
東温市牛渕【8826】売土地(中央ハウジング)

| 物件ポイント | 電停徒歩4分・生活便利 |
|---|
| 物件名 | 東温市牛渕売土地 |
|---|---|
| 物件所在地 | 東温市牛渕 |
| 全区画数 | 1区画 |
| 販売区画数 | 1区画 |
| 建築条件 | 建築条件なし |
| 建ぺい率・容積率 | 60%・200% |
| 用途地域・地目・地勢 | 第一種住居地域・宅地 |
| 土地の権利形態 | 所有権 |
| 接道・セットバック | 南6m(公道)・北4.3m(開発道路) |
| 設備 | 公営水道・公共下水・電気・プロパンガス |
| 法令上の制限 | |
| 土地面積・私道負担面積・価格・坪単価 | 土地面積:178.03㎡(約53.85坪) 1,080万円(坪単価約20.06万円) |
| 価格以外の負担金等 | |
| 校区 | 南吉井小学校・重信中学校 |
| 交通 | 電停牛渕団地前駅:徒歩4分 バス停野田1丁目:徒歩11分 |
| 近隣著名施設 | |
| 取引態様 | 専任媒介 |
| 分譲概要 | |
| 備考 | ・公簿取引 ・現況渡し ・現況月極駐車場(賃借人との解約後引渡し) ・牛渕地区地区計画(住宅地区に該当) |
| 建築条件付き宅地の説明 | |
| 注意事項 | 現在の販売状況(お申し込み状況、区画割変更、価格変更等)が当ページの情報と異なる場合がございます。その際は現況を優先いたしますので、物件情報に関する詳細は、必ず下記お問い合わせ先へご確認ください。 |
| 更新状況 | ・情報登録日:2026/2/20 ・次回更新予定日:2026/4/1 *次回更新予定日を定期的に変更することとします(規約順守) |
| お問い合わせ | ㈱中央ハウジング 松山市北梅本町779番地 TEL:089-970-0088 愛媛県知事免許(6)第4372号 メール:info@ch-h.jp ホームページ: http://www.ch-h.jp/ |
2026.2.17
松山市畑寺3丁目中古住宅 #ステディコム
| 物件ポイント | ちょうどいいサイズのお家! |
|---|
| 物件名 | 畑寺3丁目中古住宅 |
|---|---|
| 物件所在地 | 松山市畑寺3丁目1-4 |
| 土地面積 | 103.24㎡(約31.23坪) |
| 建物面積 | 77.84㎡(約23.54坪) |
| 価格 | 1868万円(税込) |
| 構造・間取り | 木造2階建て・4LDK |
| 築年月 | 1991年9月(平成3年) |
| 引き渡し | 即時 |
| 価格以外の負担金等 | 固定資産税日割分、登記費用 |
| 校区 | 北久米小学校(1200m)・桑原中学校(1650m) |
| 交通 | 三町バス停より徒歩約7分 |
| 近隣著名施設 | 姫彦温泉まで250m |
| 取引態様 | 売主 |
| 備考 | 内外装リフォーム済! 駐車2台可(普+軽) 土砂災害警戒区域(イエローゾーン) |
| 注意事項 | 現在の販売状況(お申し込み状況、区画割変更、価格変更等)が当ページの情報と異なる場合がございます。その際は現況を優先いたしますので、物件情報に関する詳細は、必ず下記お問い合わせ先へご確認ください。 |
| 更新状況 | ・情報登録日:2026/2/17 ・次回更新予定日:毎月1日 |
| お問い合わせ | 株式会社ステディコム 松山市北梅本町732-2 TEL:089-916-6668 愛媛県知事免許(2)第5468号 メール:higashi@steadycom.net ホームページ: http://steadycom.net/ |
2026.2.16
松山市柳原中古住宅 #ステディコム
| 物件ポイント | 敷地200坪超!令和3年築・平屋建て! |
|---|
| 物件名 | 柳原中古住宅 |
|---|---|
| 物件所在地 | 松山市柳原591-1 |
| 土地面積 | 728.62㎡(約220.40坪) |
| 建物面積 | 115.51㎡(約34.94坪) |
| 価格 | 2999万円(税込) |
| 構造・間取り | 木造平家建て・3SLDK |
| 築年月 | 2021年9月(令和3年) |
| 引き渡し | 相談 |
| 価格以外の負担金等 | 仲介手数料、固定資産税日割分、登記費用 |
| 校区 | 河野小学校(1650m)・北条南中学校(1950m) |
| 交通 | JR柳原駅より徒歩約7分 伊予鉄バス河野橋バス停徒歩約2分 |
| 近隣著名施設 | ディスカウントドラッグコスモス北条店まで900m |
| 取引態様 | 媒介 |
| 備考 | 鉄骨造2階建物置あり (昭和55年築 86.14㎡) エコキュートはリース |
| 注意事項 | 現在の販売状況(お申し込み状況、区画割変更、価格変更等)が当ページの情報と異なる場合がございます。その際は現況を優先いたしますので、物件情報に関する詳細は、必ず下記お問い合わせ先へご確認ください。 |
| 更新状況 | ・情報登録日:2026/2/16 ・次回更新予定日:毎月1日 |
| お問い合わせ | 株式会社ステディコム 松山市北梅本町732-2 TEL:089-916-6668 愛媛県知事免許(2)第5468号 メール:higashi@steadycom.net ホームページ: http://steadycom.net/ |
2026.2.16
喜多郡内子町内子 8区画分譲地 #ステディコム
| 物件ポイント | 内子町新規分譲地!建築条件なし! |
|---|
| 物件名 | 内子町8区画分譲地 |
|---|---|
| 物件所在地 | 喜多郡内子町内子3599-10 |
| 全区画数 | 8区画 |
| 販売区画数 | 3区画 |
| 建築条件 | 建築条件なし |
| 建ぺい率・容積率 | 60%・200% |
| 用途地域・地目・地勢 | 第二種中高層住居地域・宅地・平坦(その他) |
| 土地の権利形態 | 所有権 |
| 接道 | 4.3m~8mの町道・県道・位置指定道路(私道)に接する |
| 設備 | 公営水道・公共下水道 |
| 法令上の制限 | |
| 土地面積・私道負担面積・価格・坪単価 | 1号地 済
2号地 225.18㎡(約68.11坪) 1328.1万円(坪単価約19.5万円) 3号地 済 4号地 済 5号地 済 6号地 済 7号地 215.35㎡(約65.14坪) 1289.7万円(坪単価約19.8万円) 8号地 237.43㎡(約71.82坪) 1328.6万円(坪単価約18.5万円) |
| 価格以外の負担金等 | 仲介手数料・登記費用・境界基礎ブロック費・固定資産税日割分 |
| 校区 | 内子小学校(600m)・内子中学校(1350m) |
| 交通 | JR予讃線内子駅より徒歩6分 |
| 近隣著名施設 | フジ内子店まで約800m |
| 取引態様 | 媒介 |
| 分譲概要 | 造成工事済(2023年9月) 8区画の分譲地残り3区画 |
| 備考 | 建築条件なし |
| 注意事項 | 現在の販売状況(お申し込み状況、区画割変更、価格変更等)が当ページの情報と異なる場合がございます。その際は現況を優先いたしますので、物件情報に関する詳細は、必ず下記お問い合わせ先へご確認ください。 |
| 更新状況 | ・情報登録日:2026/2/16 ・次回更新予定日:毎月1日 |
| お問い合わせ | ㈱ステディコム 松山市北梅本町732-2 TEL:089-916-6668 愛媛県知事免許(2)第5468号 メール:higashi@steadycom.net ホームページ: https://www.steadycom.net/ |




























