- ポイント
- 駐車場2台可能・オール電化住宅
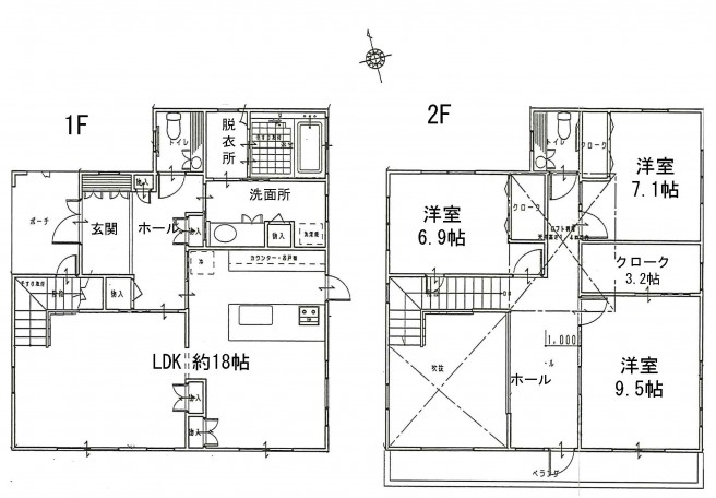
東温市南方【8775】売住宅(中央ハウジング)
2025.11.26
東温市南方【8775】売住宅(中央ハウジング)


| 物件ポイント | 太陽光発電システム・薪ストーブ・屋根裏あり |
|---|
| 物件名 | 東温市南方売住宅 |
|---|---|
| 物件所在地 | 東温市南方 |
| 土地面積・私道負担面積 | 215.46㎡(約65.17坪) |
| 建物面積 | 142.82㎡(約43.20坪) |
| 価格 | 1,750万円 |
| 構造・間取り | 木造2階建・3SLDK |
| 築年月 | 2005年11月 |
| 引き渡し | 2026年4月中旬以降 |
| 価格以外の負担金等 | |
| 校区 | 川上小学校・川内中学校 |
| 交通 | 茶堂バス停より徒歩約7分 |
| 近隣著名施設 | |
| 取引態様 | 一般媒介 |
| 備考 | ・メーターモジュール ・電気自動車用充電器 ・セコム付き |
| 注意事項 | 現在の販売状況(お申し込み状況、区画割変更、価格変更等)が当ページの情報と異なる場合がございます。その際は現況を優先いたしますので、物件情報に関する詳細は、必ず下記お問い合わせ先へご確認ください。 |
| 更新状況 | ・情報登録日:2025/11/26 ・次回更新予定日:2026/1/5 |
| お問い合わせ | ㈱中央ハウジング 松山市北梅本町779番地 TEL:089-970-0088 愛媛県知事免許(6)第4372号 メール:info@ch-h.jp ホームページ: http://www.ch-h.jp/ |
2025.11.26
東温市南方 売住宅(たくみ不動産)


















| 物件名 | 東温市南方売住宅 |
|---|---|
| 物件所在地 | 東温市南方字八幡森2124番地18 |
| 土地面積・私道負担面積 | 215.46㎡(約65.17坪) |
| 建物面積 | 142.82㎡(43.20坪) |
| 価格 | 1750万円 |
| 構造・間取り | 木造2階建て・3SLDK |
| 築年月 | 2005年11月(平成17年)築 |
| 引き渡し | 令和8年4月中旬予定 |
| 校区 | 川上小学校・川内中学校 |
| 交通 | 伊予鉄道横河原線 横河原駅より 徒歩約16分 茶堂バス停より 徒歩約7分 |
| 現況 | 所有者居住中 引渡予定:令和8年4月中旬 |
| 取引態様 | 一般媒介 |
| 設備 | 上水道・下水道・電気・プロパンガス・駐車場3台分 |
| 備考 | メーターモジュール・太陽光発電システム・電気自動車用専用充電器・薪ストーブ・屋根裏あり・セコム付き |
| 注意事項 | 現在の販売状況(お申し込み状況、区画割変更、価格変更等)が当ページの情報と異なる場合がございます。その際は現況を優先いたしますので、物件情報に関する詳細は、必ず下記お問い合わせ先へご確認ください。 |
| 更新状況 | ・情報登録日:2025/11/26 |
| お問い合わせ | たくみ不動産㈱ 松山市土居田町421-3 TEL:089-994-5501 愛媛県知事免許(4)第4941号 メール:takumi213@star.ocn.ne.jp ホームページ: https://takumi-fudousan.com/ |
2025.11.19
松山市中村2丁目中古住宅|愛媛エステート
- 物件名
- 松山市中村2丁目中古住宅
- 物件所在地
- 松山市中村2丁目117番11
- 土地面積
- 公簿 131.90㎡(39.89坪)
- 建物面積
- 床面積 延べ101.02㎡(30.55坪)
- 建築年
- 令和6年3月建築
- 構造
- 木造瓦葺2階建
- 都市計画
- 市街化区域
- 用途地域
- 第一種住居地域
- 価格
- 35,900,000円
- 建ぺい率
- 60%
- 容積率
- 200%
- 接道
- 東側 幅員約5m
- 水道
- 公営
- 排水
- 公共下水
- ガス
- 電気
- 四国電力
- 現況
- 居住中
- 校区
- 素鵞小学校・拓南中学校
- 交通
- 伊予鉄東南線小坂3バス停 約6分
- 引渡し
- 相談
- その他
- 駐車場2台可能・オール電化住宅
- 注意事項
- 現在の販売状況(お申し込み状況、区画割変更、価格変更等)が当ページの情報と異なる場合がございます。その際は現況を優先いたしますので、物件情報に関する詳細は、必ず下記お問い合わせ先へご確認ください。
- 更新状況
- ・情報登録日:2025/11/19
- お問い合わせ
- 有限会社愛媛エステート
松山市緑町1丁目9番9号
TEL:089-915-0615
愛媛県知事免許(6)第4488号
メール:eek@d4.dion.ne.jp
ホームページ: http://www.ehime-estate.com/




2025.11.13
松山市恵原町甲305番他2筆 売倉庫【有限会社ナガト宅建事務所】


| 物件ポイント | 約70坪の売倉庫 約125坪が旧既存宅地 |
|---|
| 物件名 | 松山市恵原町売倉庫 |
|---|---|
| 物件所在地 | 松山市恵原町甲305番・甲306番・甲307番 |
| 土地面積・私道負担面積 | 546.00㎡(約165.16坪)約125坪が旧既存宅地 |
| 建物面積 | 254.73㎡(約77.05坪)未登記 |
| 価格 | 1480万円(税なし) |
| 構造・間取り | 鉄骨造2階建て |
| 築年月 | 築年不詳 |
| 引き渡し | 相談 |
| 価格以外の負担金等 | |
| 校区 | 荏原小学校(740m)・久谷中学校(960m) |
| 交通 | 恵原公民館前バス停より徒歩約3分(180m) |
| 近隣著名施設 | 荏原城跡まで420m |
| 取引態様 | 一般媒介 |
| 備考 | ・約125坪が市街化調整区域の旧既存宅地
・建物未登記 |
| 注意事項 | 現在の販売状況(お申し込み状況、区画割変更、価格変更等)が当ページの情報と異なる場合がございます。その際は現況を優先いたしますので、物件情報に関する詳細は、必ず下記お問い合わせ先へご確認ください。 |
| 更新状況 | ・情報登録日:2025/11/13 ・次回更新予定日:2026/2/13 |
| お問い合わせ | 有限会社ナガト宅建事務所 松山市保免中二丁目3番8号 TEL:089-972-7222 愛媛県知事免許(6)第4502号 メール:nagato@nagatotakken.com |
2025.11.13
伊予郡松前町大字徳丸 売土地 【有限会社ナガト宅建事務所】



| 物件ポイント | 市街化調整区域の宅地 |
|---|
| 物件名 | 伊予郡松前町大字徳丸 売り土地 |
|---|---|
| 物件所在地 | 伊予郡松前町大字徳丸1068番 |
| 全区画数 | 1区画 |
| 販売区画数 | 1区画 |
| 建築条件 | 建築条件なし |
| 建ぺい率・容積率 | 70%・200% |
| 用途地域・地目・地勢 | 市街化調整区域・宅地・平坦 |
| 土地の権利形態 | 所有権 |
| 接道・セットバック | 5m・セットバック不要 |
| 設備 | 電気 |
| 法令上の制限 | |
| 土地面積・私道負担面積・価格・坪単価 | 土地面積:199㎡(約60.19坪) 私道負担面積:なし 440万円(坪単価約7.3万円) |
| 価格以外の負担金等 | |
| 校区 | 北伊予小学校(2,110m)・北伊予中学校(2,230m) |
| 交通 | JR予讃線 北伊予駅より徒歩20分 |
| 近隣著名施設 | 徳丸集会所まで300m |
| 取引態様 | 専任媒介 |
| 分譲概要 | 大型団地の際は記載 |
| 備考 | ・市街化調整区域の宅地ですが、一般住宅建築不可 ・現況建物は違反建築物につき、売主にて解体更地渡し |
| 建築条件付き宅地の説明 | |
| 注意事項 | 現在の販売状況(お申し込み状況、区画割変更、価格変更等)が当ページの情報と異なる場合がございます。その際は現況を優先いたしますので、物件情報に関する詳細は、必ず下記お問い合わせ先へご確認ください。 |
| 更新状況 | ・情報登録日:2025/11/13 ・次回更新予定日:2026/2/13に変更することとします(規約順守) |
| お問い合わせ | 有限会社ナガト宅建事務所 松山市保免中二丁目3番8号 TEL:089-972-7222 愛媛県知事免許(6)第4502号 メール:nagato@nagatotakken.com ホームページ: http://nagatotakken.com |







